Fabricat in*:



























Iluminare LED - Alimente în lumina reflectoarelor
Cu iluminare LED durabilă și eficientă energetic, nu vei rata nimic din interiorul aparatului tău. Lumina puternică și uniformă îți permite să vezi clar fiecare raft. Iar dacă modelul tău include Home Connect, poți controla iluminarea direct din aplicație - poți porni sau opri, sau ajusta intensitatea luminii în funcție de preferințele tale. Pentru că o vizibilitate excelentă înseamnă mai puțină căutare și mai mult confort.
BigBox - Mai mult spațiu în congelator pentru alimentele tale preferate
BigBox este un sertar pentru alimente congelate, conceput pentru depozitarea practică a recipientelor suprapuse sau a articolelor mai mari, precum torturi sau pizza. Datorită dimensiunii sale extra-înalte, oferă suficient spațiu pentru depozitarea produselor congelate voluminoase, fiind ideal pentru evenimente speciale, cum ar fi aniversarea unui copil sau congelarea unui tort de nuntă.
Easy Access Shelf - Acces ușor la conținutul frigiderului
Când frigiderul este plin, este greu să ții evidența legumelor sau a gustărilor ascunse în spate. De aceea, am conceput raftul EasyAccess, special realizat ca tu să poți vedea conținutul frigiderului dintr-o singură privire. Tot ce trebuie să faci este să îl tragi și vei avea acces ușor la toate alimentele. Fabricat din sticlă incasabilă, acest raft ușor de manevrat îți permite să găsești rapid ingredientele potrivite pentru următoarea ta masă.
Low Frost - Congelare, cu acumulare minimă de gheață
Necesitatea de a dezgheța în mod constant un congelator convenţional implică investiţie de timp şi de energie. LowFrost reduce cantitatea de gheaţă care se formează în congelatorul tău pentru a elimina necesitatea de dezgheţare frecventă. Mai puțină gheață, mai mult confort.
2 circuite de răcire separate - Două circuite de răcire separate sunt mai confortabile și economisesc energie
În aparatele cu circuite separate, secțiunile de răcire și congelare pot fi controlate independent. Comenzile electronice ușor de utilizat îți permit să reglezi temperaturile după necesități.
Super Răcire - Frigiderul care ştie cum să se menţină rece
Cu funcția Super Cooling, poți reduce temporar temperatura din frigider înainte de a merge la cumpărături. Astfel, alimentele proaspăt achiziționate sunt păstrate la temperatura optimă. Este suficient să apeși un buton pentru a scădea temperatura cu până la 2°C. Iar pentru a evita consumul inutil de energie, funcția revine automat la setările normale după aproximativ 6-15 ore. În plus, dacă frigiderul tău este conectat, poți activa funcția Super Cooling direct din aplicația Home Connect.
Tehnologia cu Intelligent Inverter
Tehnologia Intelligent Inverter ajustează continuu temperatura frigiderului în funcție de condițiile de temperatură din interior și exterior. Funcționează optim, menținând temperatura frigiderului constantă, în mod foarte eficient.
Sertare organizate în congelator
Un sistem ingenios de sertare în congelator pe 3 nivele creează spațiu de depozitare suplimentar pentru alimente congelate, de la cutii pentru pizza la vafe congelate. Noul sistem organizat de aranjare a rafturilor, la care se adaugă iluminarea cu LED, prezintă cu claritate toate produsele din congelator, astfel încât alimentele să nu rămână uitate.
Alarmă
Un semnal sonor te avertizează atunci când ușa nu este închisă corespunzător. Acest lucru te ajută să previi risipa de alimente și de energie.
Rafturi din sticlă securizată - Stabilitate sporită pentru o depozitare în siguranță
Toate rafturile din sticlă sunt realizate din sticlă incasabilă, foarte rezistentă. În felul acesta, poți depozita în siguranță în frigider și alimente grele, cum ar fi pepenii mari sau vasele voluminoase. În plus, acestea sunt deosebit de ușor de curățat.
Controlul individual al temperaturii - Flexibilitate totală în ceea ce privește controlul temperaturii
Cu ajutorul controlului individual al temperaturii, poți seta în mod independent, cu ușurință temperatura frigiderului și a congelatorului. Dacă pleci în vacanță, poți regla frigiderul la o temperatură mai ridicată, în timp ce congelatorul continuă să rămână la temperatura setată și poți reduce astfel consumul de energie.
Controlul electronic al temperaturii - Un frigider care asigură o precizie reală
În loc de salată congelată și carne dezghețată, păstrează nivelul de răcire ideal. Cu ajutorul controlului electronic al temperaturii, poți seta cu ușurință frigiderul până la ultimul grad și poți verifica afișajul digital dacă ai îndoieli. Dacă funcția Home Connect este integrată în aparatul tău, nu trebuie să fii acasă pentru a regla temperatura din aplicație sau pentru a menține o prospețime perfectă. Asta da, răcire!
Clasa de eficiență energetică C - Economisești energie cu clasa de eficiență energetică C
Clasa de eficiență energetică C oferă economii bune de energie, fără a compromite performanța fiabilă de răcire. Poți avea încredere că aparatul tău va păstra alimentele proaspete și reci, consumând mai puțină energie decât modelele din clase inferioare. Clasa C este o alegere excelentă pentru cei care doresc să reducă facturile la energie fără a sacrifica calitatea refrigerării.
Super Congelare - Protejează alimentele precongelate
Adăugarea de alimente noi în congelator crește temperatura internă, ceea ce poate duce la decongelare și pierderea aromei. Funcția Super Congelare asigură congelarea rapidă a alimentelor proaspăt introduse, prevenind astfel decongelarea celorlalte produse din congelator. Aparatele dotate cu funcție automată de congelare revin la modul normal de funcționare imediat ce se atinge temperatura necesară, evitând consumul inutil de energie. Astfel, alimentele congelate își păstrează gustul, chiar și atunci când se adaugă produse noi.
PERFORMANŢĂ ŞI CONSUM:
Clasa de eficiență energetică: C
Volum total : 343 l
Volum Net Frigider : 249 l
Volum Net Congelator: 94 l
Capacitate congelare 24h : 5.5 kg
Consum energie/an: 149 KWh/an
Clasa climatică: SN-T
Nivel de zgomot : 38 dB
Autonomie (fără curent) : 18 h
DESIGN
Uși culoare
Metal Look, pereți laterali de culoare gri
Mâner vertical integrat
Iluminare LED în frigider
CONFORT ŞI SIGURANŢĂ:
Reglare electronică a temperaturii, afişaj exterior (display cu 7 segmente)
1 compresor, 2 circuite de răcire
Alarmă sonoră pentru ușă frigider deschisă
Semnal optic şi sonor de avertizare la creşterea temperaturii in congelator
Funcţie Holiday (Vacanţă), 4 suporturi pe uşă
Funcţie de super-răcire: dezactivare automată
Dezgheţare automată a frigiderului
DETALII COMPARTIMENT FRIGIDER
5 rafturi din sticlă securizată, dintre care 2 reglabile pe înălţime, 4 rafturi extensibile
1 suport mare pe uşă, 3 suporturi mici pe uşă
Suport pentru sticle
SISTEM DE PROSPEŢIME:
1 sertar VitaFresh ◄0°C► - peștele și carnea își mentin prospețimea pe o perioadă mai îndelungată
1 sertar VitaFresh cu regulator de umiditate - păstrează fructele și legumele proaspete pe o perioadă mai îndelungată
DETALII COMPARTIMENT CONGELATOR
Sistem Low Frost - tehnologie pentru mai puţină gheaţă în congelator
VarioZone - rafturi din sticlă detașabile pentru spațiu suplimentar în congelator
Funcție de Super -Congelare
3 sertare transparente în congelator din care 1 BigBox
Calendar pentru alimentele congelate
DETALII TEHNICE:
Uşă cu deschidere spre dreapta, reversibilă
Picioare frontale reglabile şi picioare posterioare cu role
Evacuarea apei din condens
Putere conectată: 90 W
Conexiune electrică: 220 - 240 V
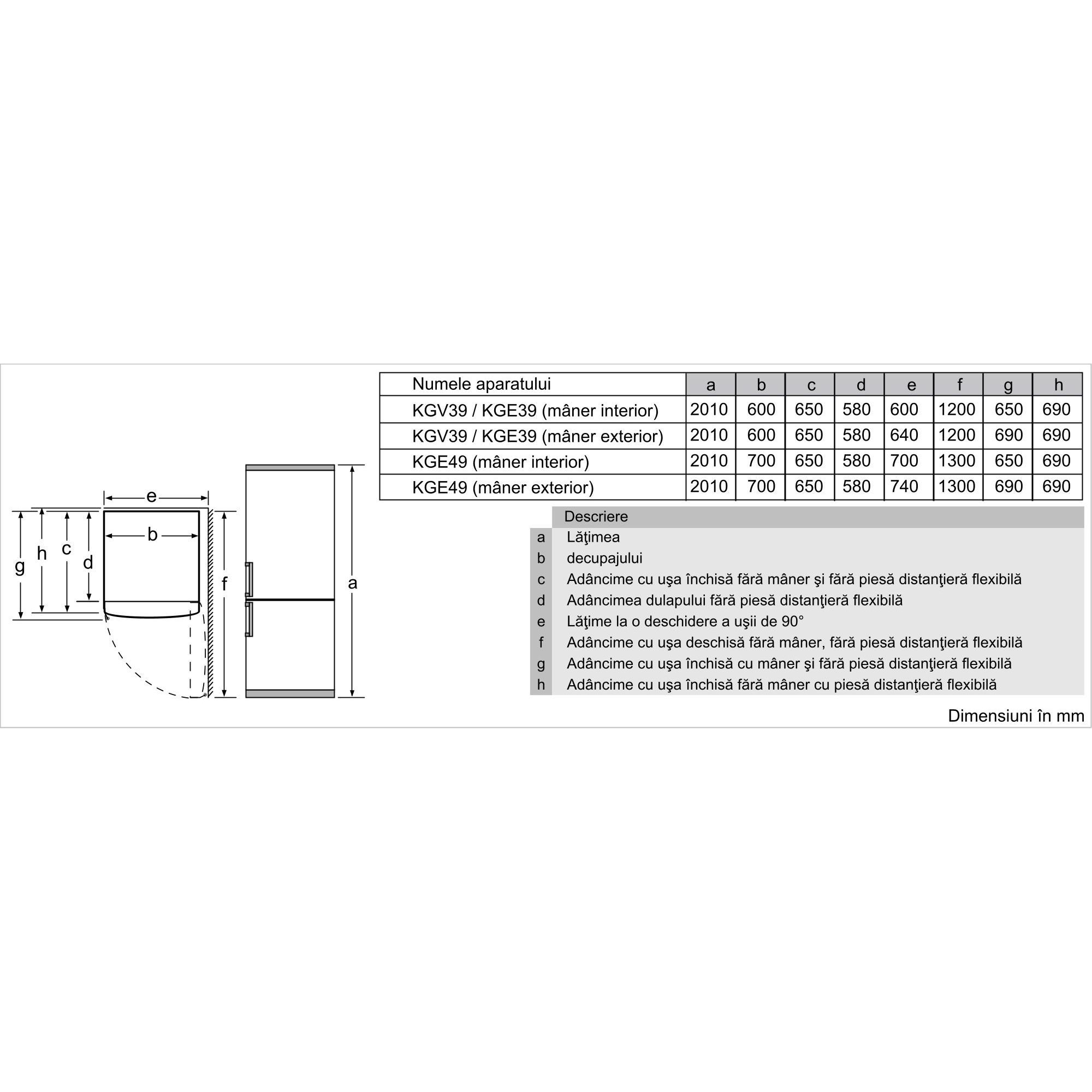
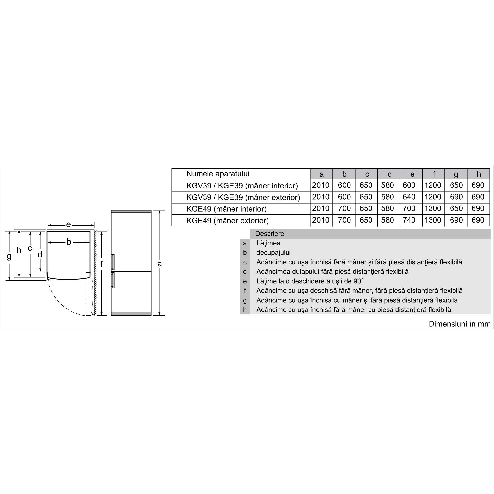
DIMENSIUNI:
Dimensiuni (Î x L x A): 201 cm x 60 cm x 65 cm
MENTIUNI SUPLIMENTARE:
Bazat pe rezultatele testului standard de 24 ore. Consumul real depinde de modul de utilizare şi amplasarea aparatului.
Pentru atingerea nivelului de consum declarat, trebuie folosite distanţierele livrate. Drept rezultat, adâncimea aparatului se va mări cu 3,5 cm. Folosirea fără distanţiere nu afectează funcţionarea aparatului, cu excepţia unei uşoare creşteri a consumului de energie.
Indicator de temperatură (interior)
Funcție de Super-Congelare cu dezactivare automată



